Budapest - Eladó Lakás
III. kerület, Békásmegyeri ltp. Duna felől, Királyok útja
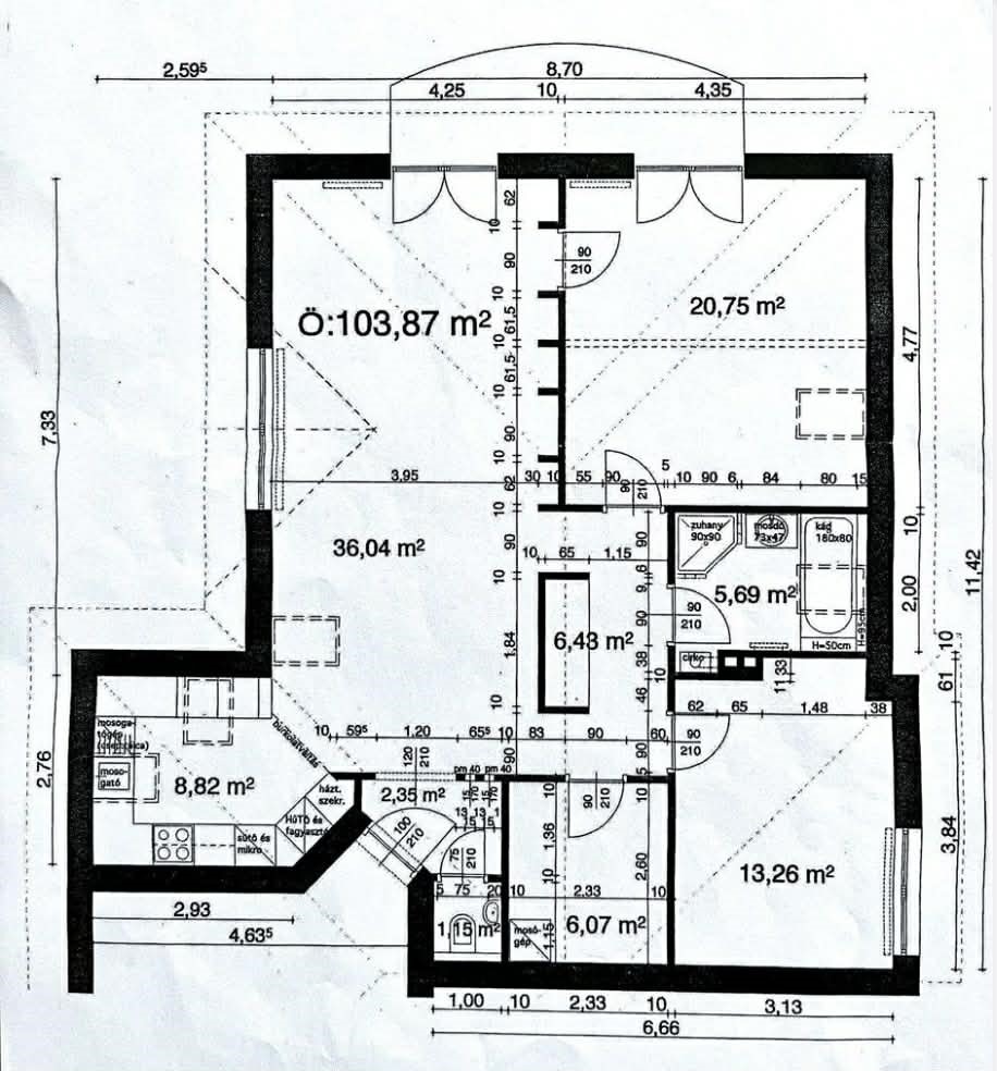
103 m2
145.000.000 Ft
348326
Leírás
HÉTVÉGÉN IS HÍVJON MINKET BÁTRAN! FOGADJUK HÍVÁSÁT!
Eladó a Római-parton 5 épületből álló két szintes, zárt lakóparkban, első emeleti 3 szobás, teraszos lakás! Az ingatlan mérete 103 m2, ami kiegészül egy 10 m2-es erkéllyel. A lakáshoz külön megvásárolható egy autó részére mélygarázs, valamint egy 10 m2-es tároló.
Garázs beálló: 9 000 000 Ft
Tároló: 3 000 000 Ft
A lakópark árvízvédelmi területen helyezkedik el és közvetlen lejárattal rendelkezik a Duna-partra.
Teljes körű, hitel- és biztosítási ügyintézéssel, kedvezményes ügyvédi munkadíjjal állunk szíves rendelkezésükre. További információért, illetve időpont egyeztetéssel kapcsolatban keressenek minket bizalommal, a telefont hétvégén is felvesszük.
Több ingatlanunk esetében ingatlanbeszámítás is lehetséges, a részletekről érdeklődjön telefonban.
Vevőink számára a közvetítés díjtalan.
WE SPEAK ENGLISH, FEEL FREE TO CALL US.
Az ingatlan elhelyezkedése
Kapcsolati adatok
Érdeklődjön az ingatlanról, e-mailben!
Hasonló ingatlanok
Budapest III. kerület (Óbuda), Szőlő utca
HÉTVÉGÉN IS HÍVJON MINKET BÁTRAN! FOGADJUK HÍVÁSÁT!
Budapest III. kerület (Óbuda), Tímár utca
HÉTVÉGÉN IS HÍVJON MINKET BÁTRAN! FOGADJUK HÍVÁSÁT!
Budapest III. kerület (Kaszásdűlői ltp.), Kaszásdűlő utca
HÉTVÉGÉN IS HÍVJON MINKET BÁTRAN! FOGADJUK HÍVÁSÁT!
Eladó egy frissen felújított 1+2 fél szobás, 50+5,7 m2-es ...